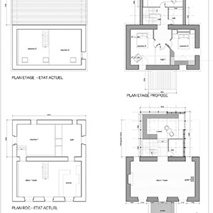
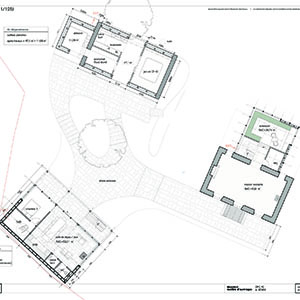
maison le projet est pour la maison d’être la siège d’une exploitation agricole et l’habitation de l’exploitant. Nous proposons de démolir l’appentis existant et le remplacer par une extension contemporaine sur deux étage. L’extension reprends la forme traditionnelle mais utilise les matériaux différents, donc en distingue clairement l’ajout contemporaine. Ici on aura du bois, du verre et du zinc avec les grands baies vitrées pour profiter des vues sur le paysage hangar Le hangar serait transformé en table et chambres d’hôtes principalement pour des invitées de la Chasse. Avec un grand salon et salle de banquet au RdC et des chambres / SdB à l’étage. Pour ce bâtiment on propose une construction inspiré par les constructions agricole; avec du bois, remplaçant les parpaing avec le pierre, le tôle ondulé avec du zinc avec joints debout.
dépendance en pierre la dépendance en pierre serait reconstruit en pierre comme “chai” qui s’occupe de tous qui concerne l’exploitation agricole et la chasse; donc une partie abattoir / préparation / conserverie et cuisine. On va accentuer l’aspect bas et lourd, en faisant une toiture végétalisé donc la construction deviendrait vraiment de la terre. >projects list