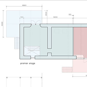
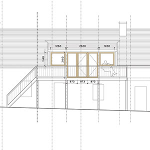
Conversion of a derelict longère into three seperate gîtes.
The design aims to open the building up to natural daylight and views. Using the first floor as living spaces we are looking at ways of cost effectively raising areas of roof to open out onto external first floor terraces. >projects list